Mandskabsmoduler 14 -128 m2

FM162 - 4P
14 M2

FM112 - 10PG
29M2

FM116 - 30P2
51 M2

FM112 - 10PGL
29M2

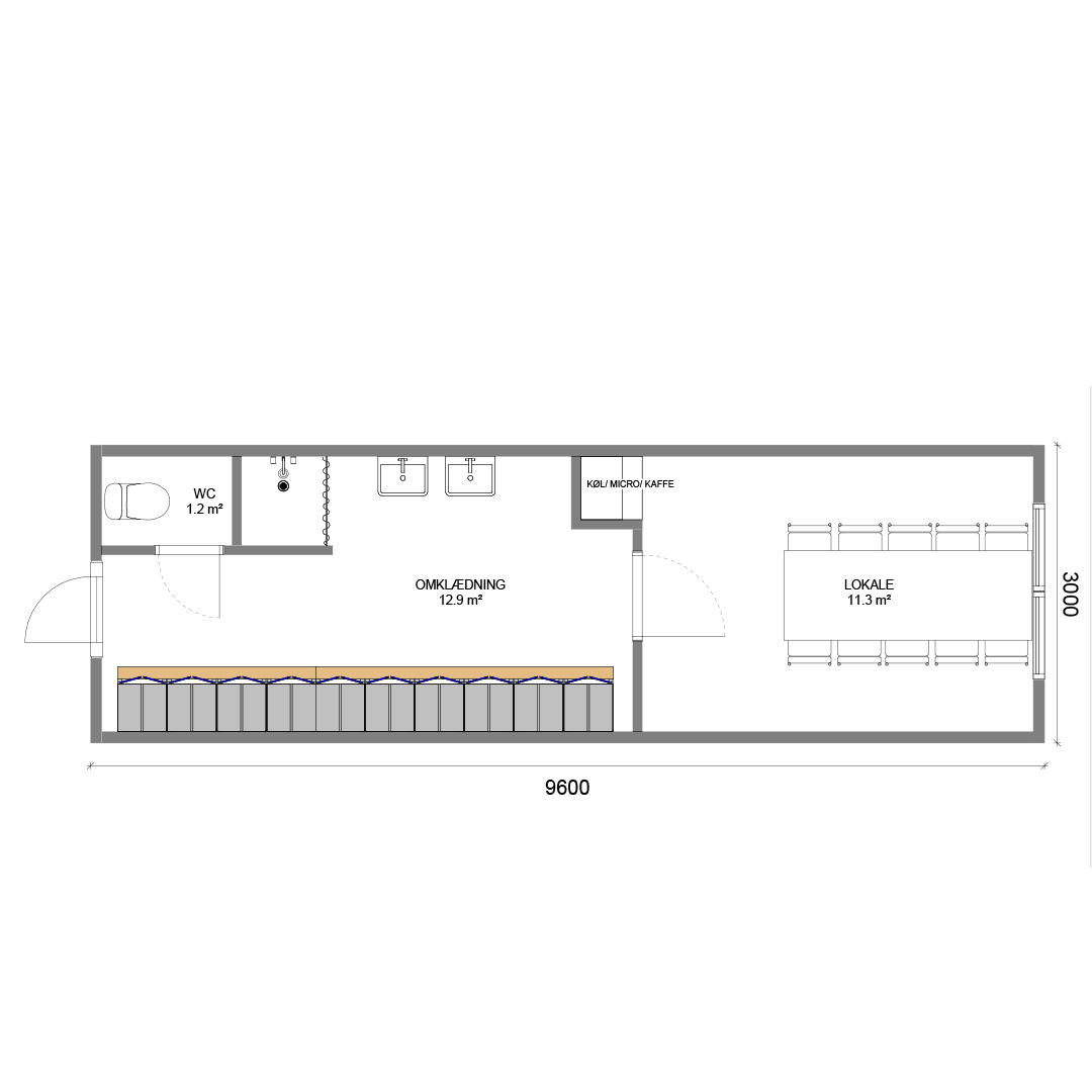
FM112 - 10PL
29M2

FM117 - 20P4
65 M2

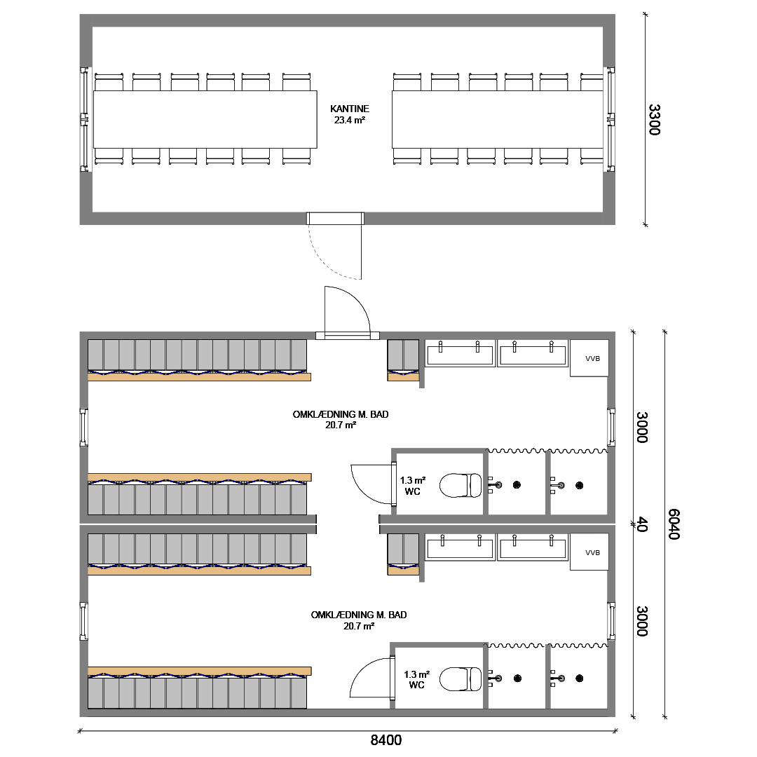
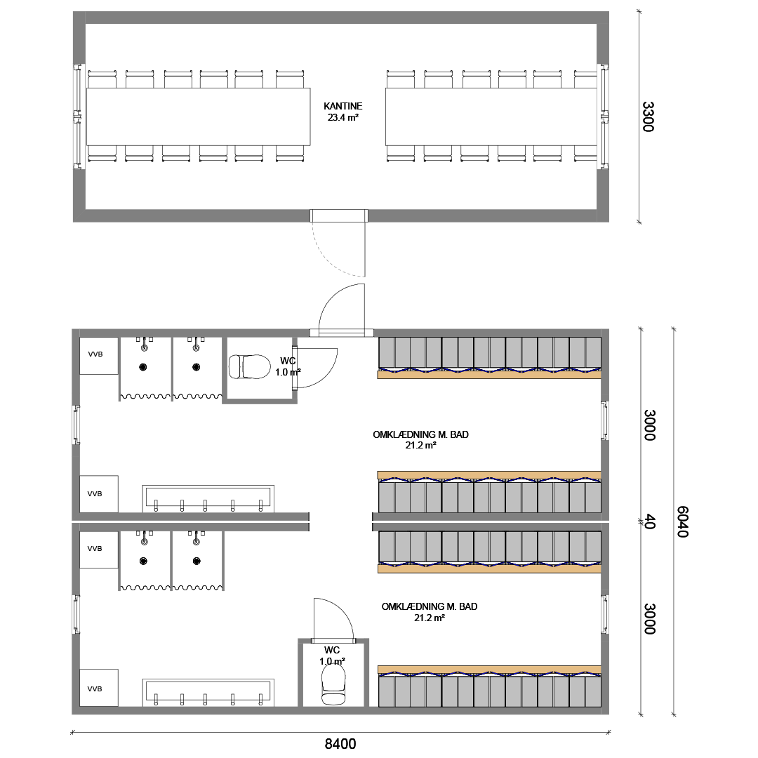
FM117 - 40/50P4
76 M2

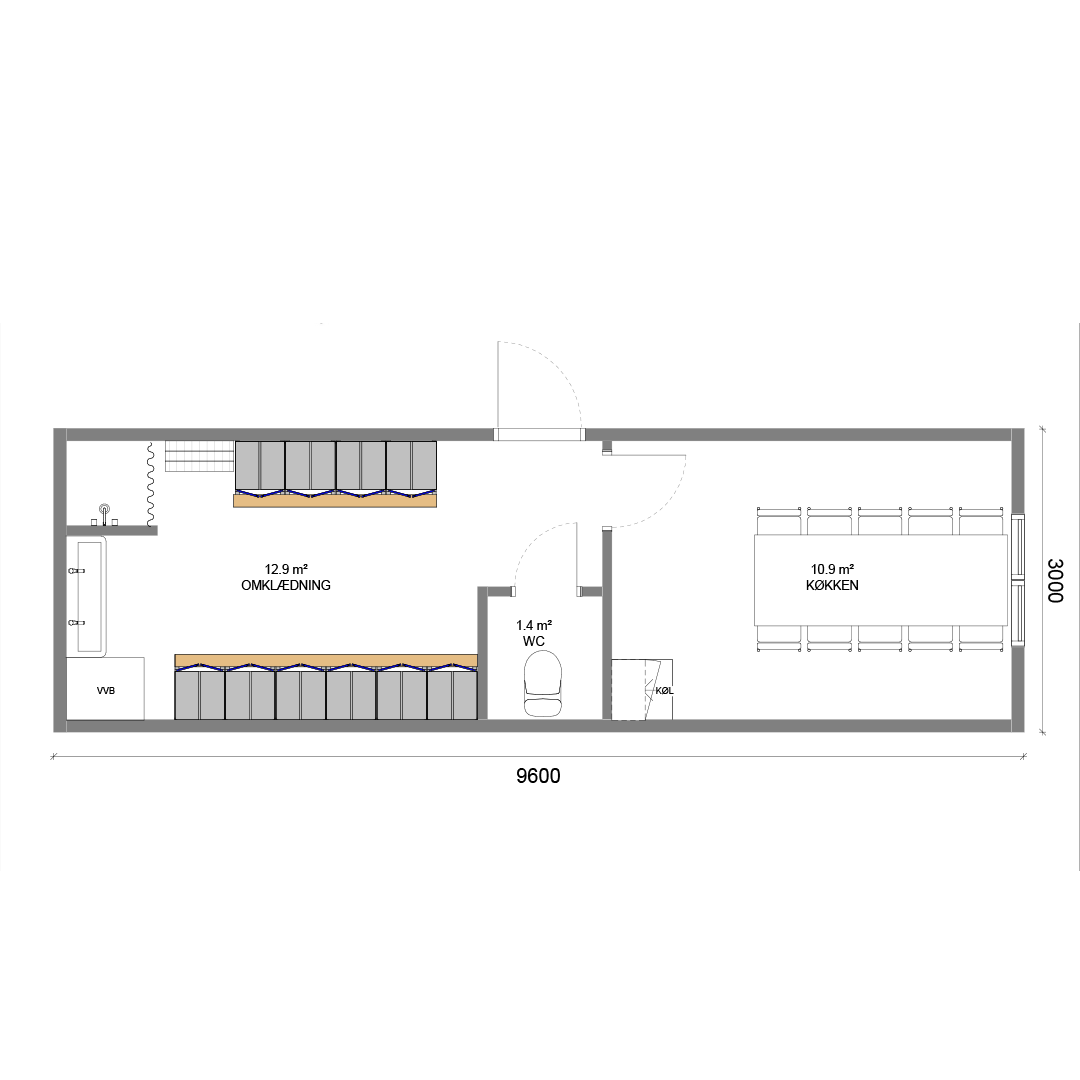
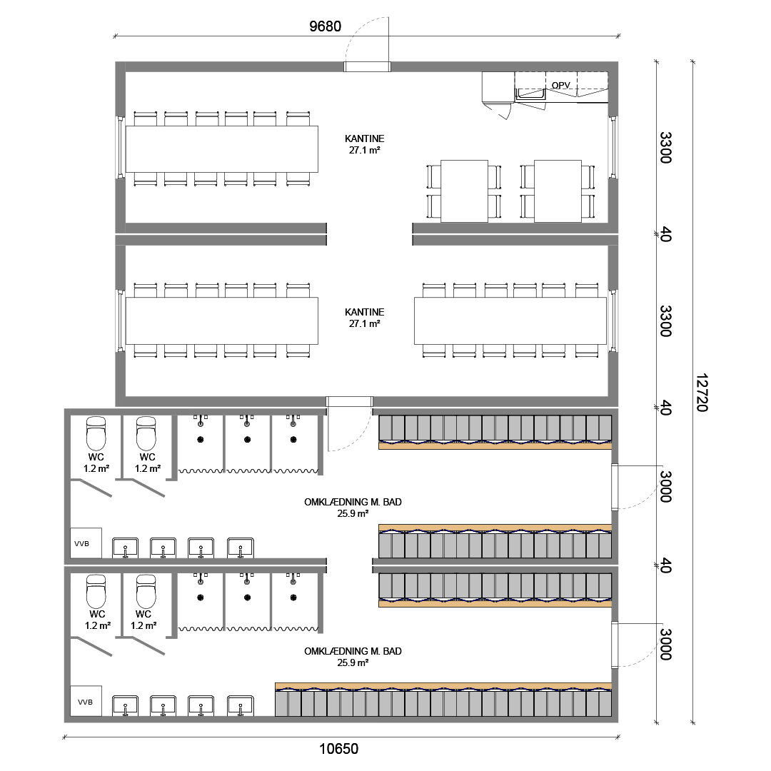
FM112 - 40P10
127 M2

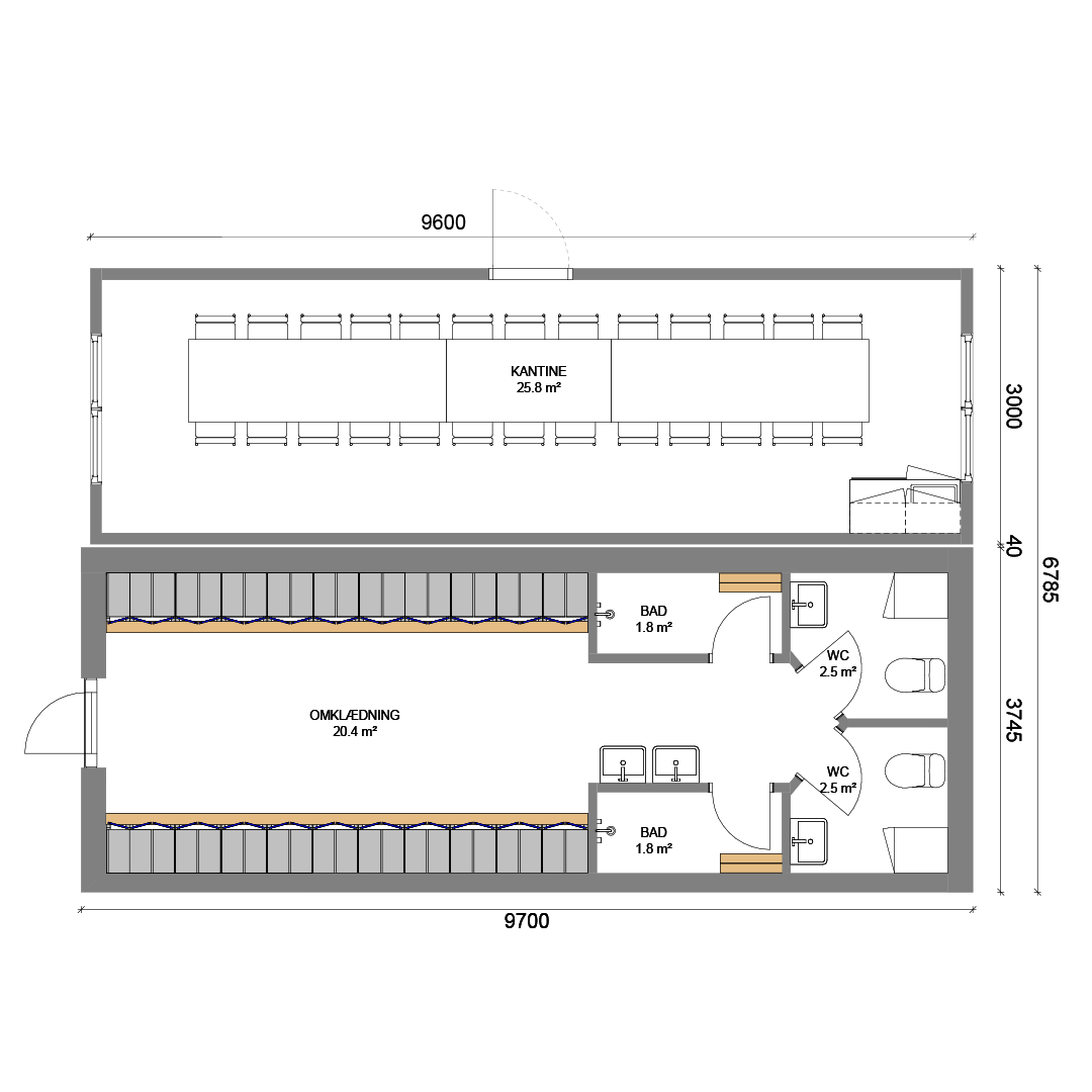
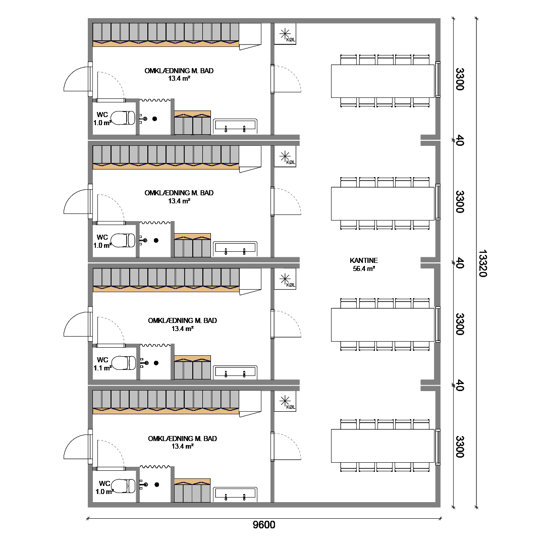
FM117 - 40P4
128 M2
Omklædningsmoduler

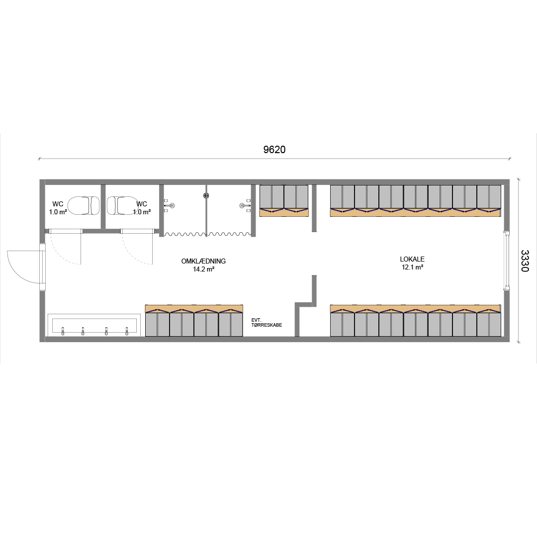
FM116 - 15P
25M2

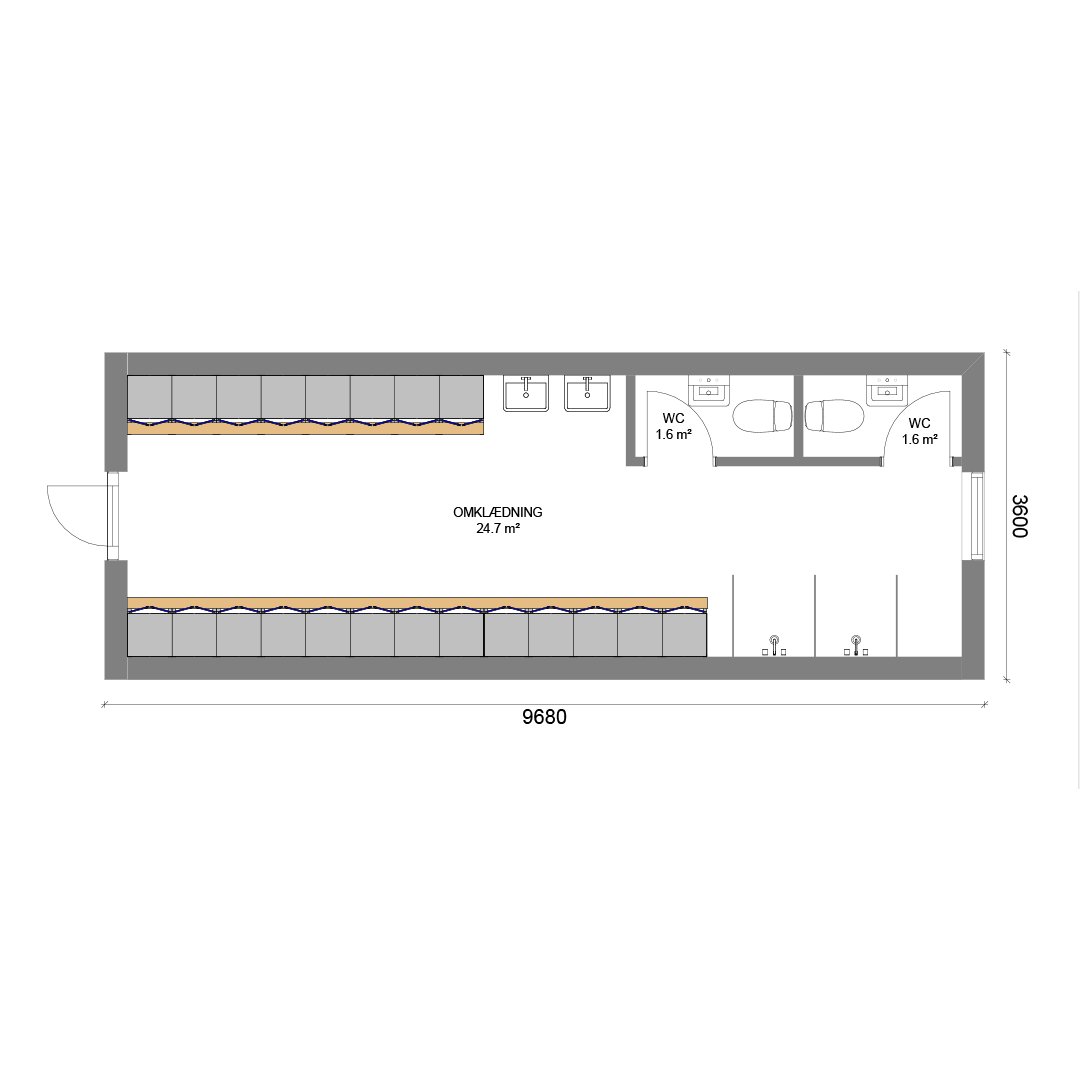
FM117 - 20P5
32M2

FM112 - 10PL
35M2

FM112 - 10PL1
35M2

FM117 - 20P2
35M2

FM117 - 20P3
35M2

FM117 - 20P4
35M2

FM117 - 20P5
37M2
Brug for hjælp?
Kontakt os for uforpligtende rådgivning om modulbyggeri.
+45 87 10 90 99
info@focusmoduler.dk











