Skurvogne og mandskabsvogne til enhver opgave
Hos FOCUS Moduler A/S møder du specialviden og høj ekspertise inden for indretning af byggepladser med mandskabsvogne og skurvogne. Vores fleksible modul løsninger transporteres og opstilles nemt, ligesom tilslutning til el og vand klares uden besvær.
Bredt udvalg af moduler sikrer høj fleksibilitet
Vi leverer mandskabs- og skurvogne til både permanente løsninger og midlertidig opstilling, og vi har et bredt udvalg af moduler til sammensætning af netop de funktioner, der dækker dit behov. Hos FOCUS Moduler A/S tilbydes du endvidere totalentrepriser, hvor vi sørger for alt – lige fra transport, opstilling, sammenbygning og tilslutning samt eventuelt også efterfølgende drift og service i form af f.eks. kantine funktion eller rengøring.
Erfaren leverandør til danske byggepladser
Med mere end 30 års erfaring indenfor produktion, salg og udlejning af pavilloner og moduler samt materiel til bl.a. byggepladser og festivaller – herunder mandskabsvogne og skurvogne – står vi klar til at være din seriøse samarbejdspartner, der tilbyder omkostningseffektive totalløsninger til din næste opgave.
Typiske anvendelsesmuligheder for moduler til byggepladser:
- Kantine
- Omklædning
- Byggepladsservice
- Opbevaring
- Toiletter
- Badefaciliteter
- Kontorer
– og meget, meget mere…
Tegningsmateriale
Mandskabsmoduler

LM4
Mandskabsletvogn
4 personer
Størrelse: 2,3 x 5,7 m, 13 m2
Egnet til 4 personer.
Indeholder omklædning, bad, toilet og lokale.

M10-1
Mandskabsmodul
10 personer
Størrelse: 3,0 x 9,6 m, 29 m2
Egnet til 10 personer.
Indeholder omklædning, bad, toilet og kantine.

M10-2
Mandskabsmodul
10 personer
Størrelse: 3,0 x 9,6 m, 29 m2
Egnet til 10 personer.
Indeholder omklædning, bad, toilet og kantine.

M10-3
Mandskabsmodul
10 personer
Størrelse: 3,0 x 9,6 m, 29 m2
Egnet til 10 personer.
Indeholder omklædning, bad, toilet og kantine.

M20
Mandskabsmoduler
20 personer
Størrelse: 2 x 3,3 x 9,6 m, 64 m2
Egnet til 20 personer.
Indeholder omklædning, bad, toilet og kantine.

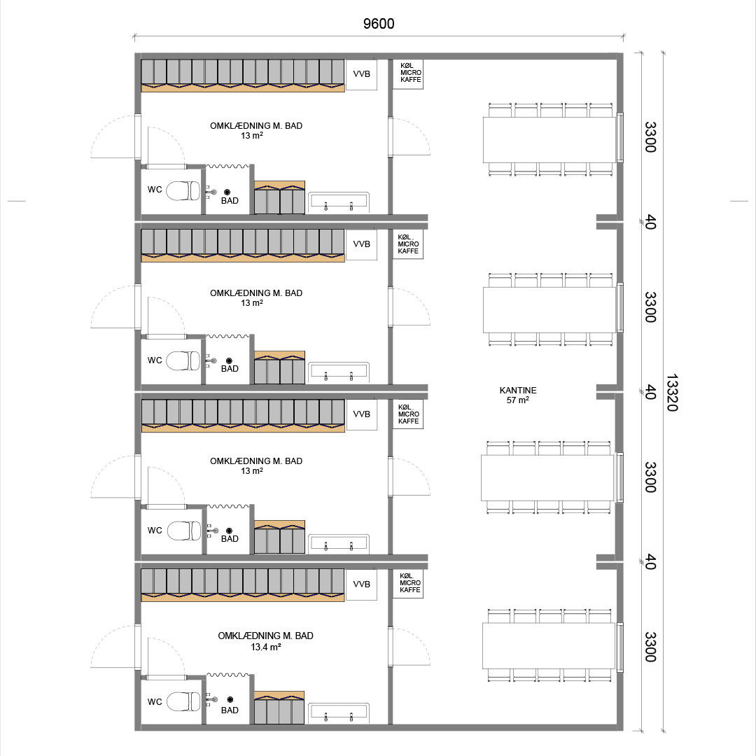
M30
Mandskabsmoduler
30 personer
Størrelse: 3 x 3,3 x 9,6 m, 96 m2
Egnet til 30 personer.
Indeholder omklædning, bad, toilet og kantine.

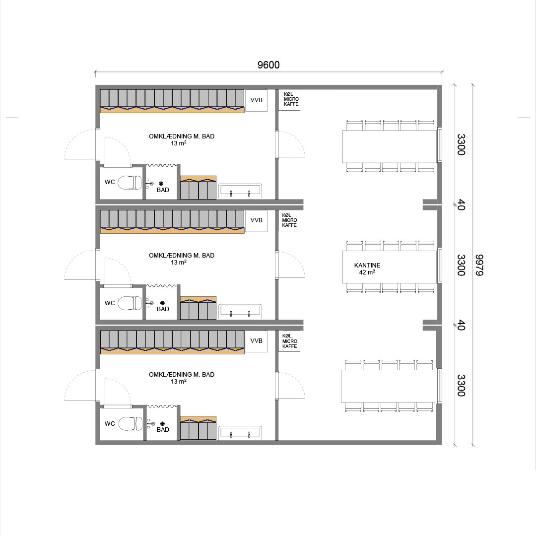
M40
Mandskabsmoduler
40 personer
Størrelse: 4 x 3,3 x 9,6 m, 127 m2
Egnet til 40 personer.
Indeholder omklædning, bad, toilet og kantine.
Omklædningsmoduler

O15-1
Omklædningsmodul
15 personer
Størrelse: 3,0 x 8,4 m, 25 m2
Egnet til 15 personer.
Indeholder omklædning, bad, og toilet.

O20-1
Omklædningsmodul
20 personer
Størrelse: 3,3x 10,6 m, 35 m2
Egnet til 20 personer.
Indeholder omklædning, bad, og toilet.

O20-2
Omklædningsmodul
20 personer
Størrelse: 3,3x 10,6 m, 35 m2
Egnet til 20 personer.
Indeholder omklædning, bad, og toilet.

O20-3
Omklædningsmodul
20 personer
Størrelse: 3,3 x 9,6 m, 32 m2
Egnet til 20 personer.
Indeholder omklædning, bad, og toilet.

O20-4
Omklædningsmodul
20 personer
Størrelse: 3,6 x 9,6 m, 35 m2
Egnet til 20 personer.
Indeholder omklædning, bad, og toilet.

O20-5
Omklædningsmodul
20 personer
Størrelse: 3,6 x 9,6 m, 35 m2
Egnet til 20 personer.
Indeholder omklædning, bad, og toilet.

O20-6
Omklædningsmodul
20 personer
Størrelse: 3,6 x 9,6 m, 35 m2
Egnet til 20 personer.
Indeholder omklædning, bad, og toilet.

O22-1
Omklædningsmodul
22 personer
Størrelse: 3,3 x 10,6 m, 35 m2
Egnet til 22 personer.
Indeholder omklædning, bad, og toilet.

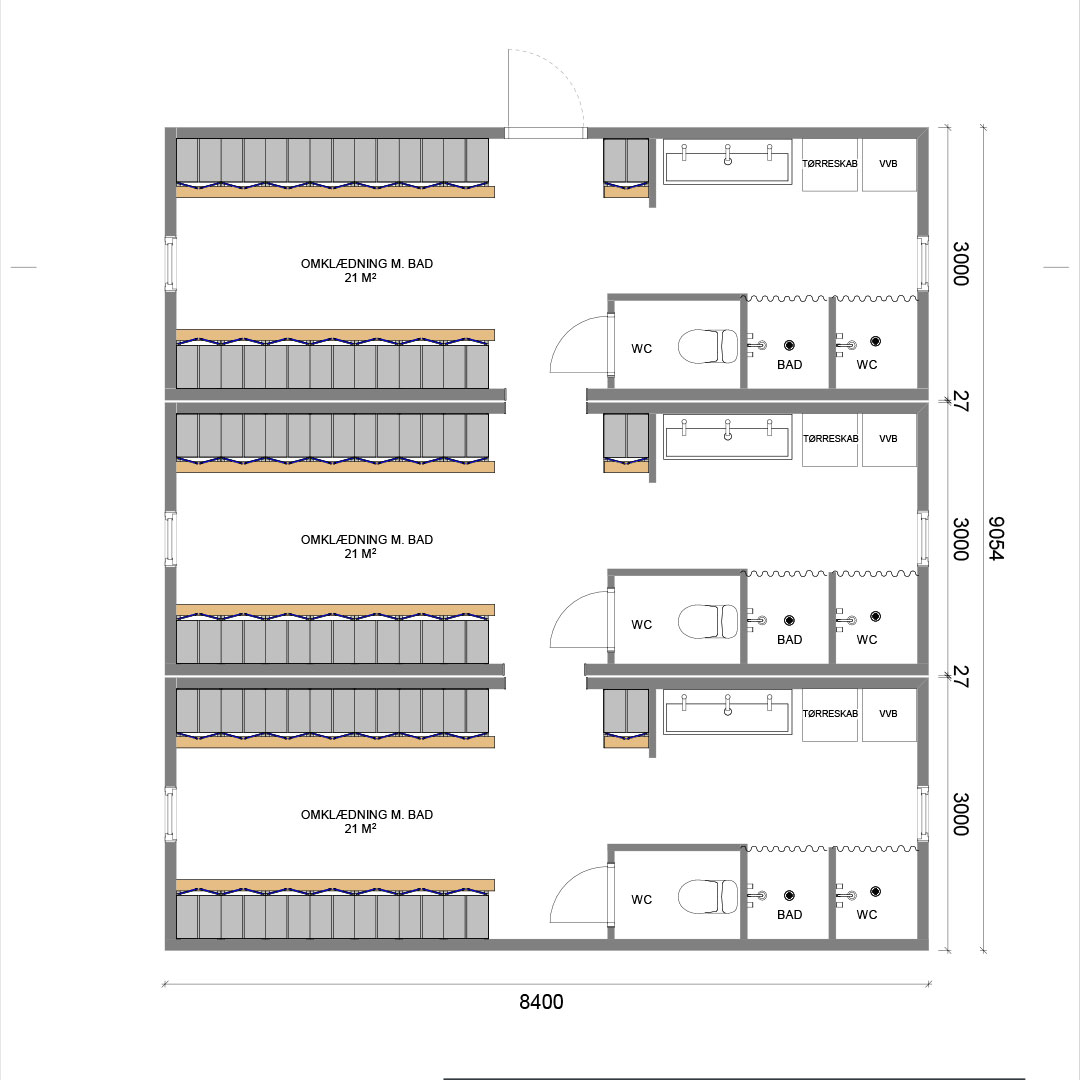
O30-1
Omklædningsmoduler
30 personer
Størrelse: 2 x 3,0 x 8,4 m, 50 m2
Egnet til 30 personer.
Indeholder omklædning, bad, og toilet.

O45-1
Omklædningsmoduler
45 personer
Størrelse: 3 x 3,0 x 8,4 m, 76 m2
Egnet til 45 personer.
Indeholder omklædning, bad, og toilet.
Omklædning/Kantinemoduler

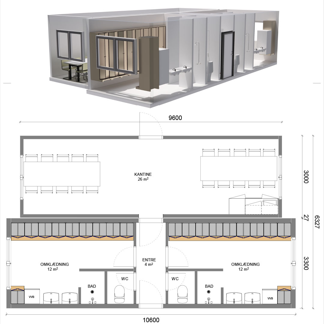
OK15-1
Omklædning/Kantinemoduler
15 personer
Størrelse: 2 x 3,0 x 8,4 m, 50 m2
Egnet til 15 personer.
Indeholder omklædning, bad, toilet og kantine.

OK20-1
Omklædning/Kantinemoduler
20 personer
Størrelse: 3,3 x 10,6 m og 3,0 x 9,6 m, 64 m2
Egnet til 20 personer.
Indeholder omklædning, bad, toilet og kantine.

OK20-2
Omklædning/Kantinemoduler
20 personer
Størrelse: 3,6 x 9,6 m og 3,0 X 9,6 m, 64 m2
Egnet til 20 personer.
Indeholder omklædning, bad, toilet og kantine.

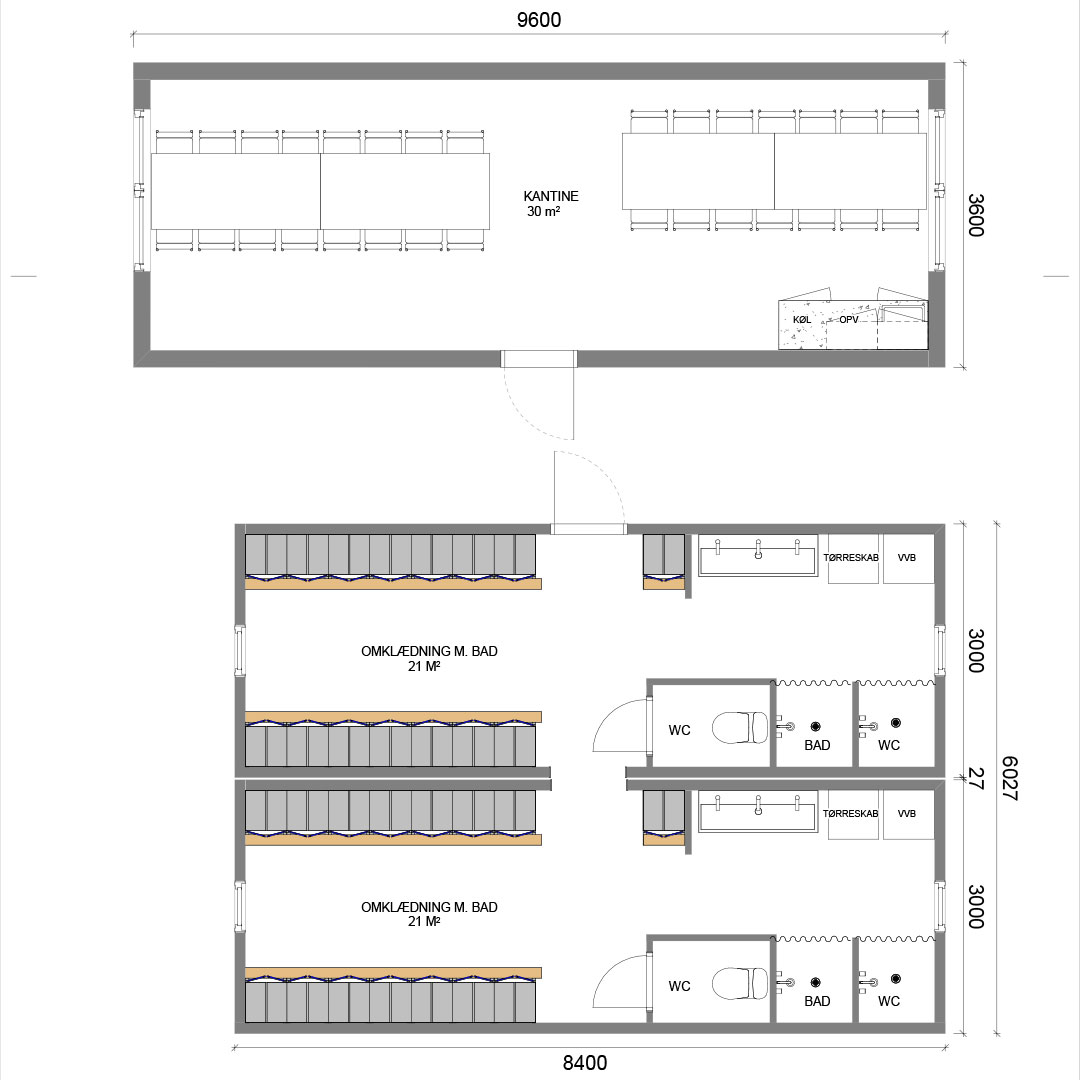
OK30-1
Omklædning/Kantinemoduler
30 personer
Størrelse: 2 x 3,0 x 8,4 m og 3,6 x 9,6 m, 86 m2
Egnet til 30 personer.
Indeholder omklædning, bad, toilet og kantine.

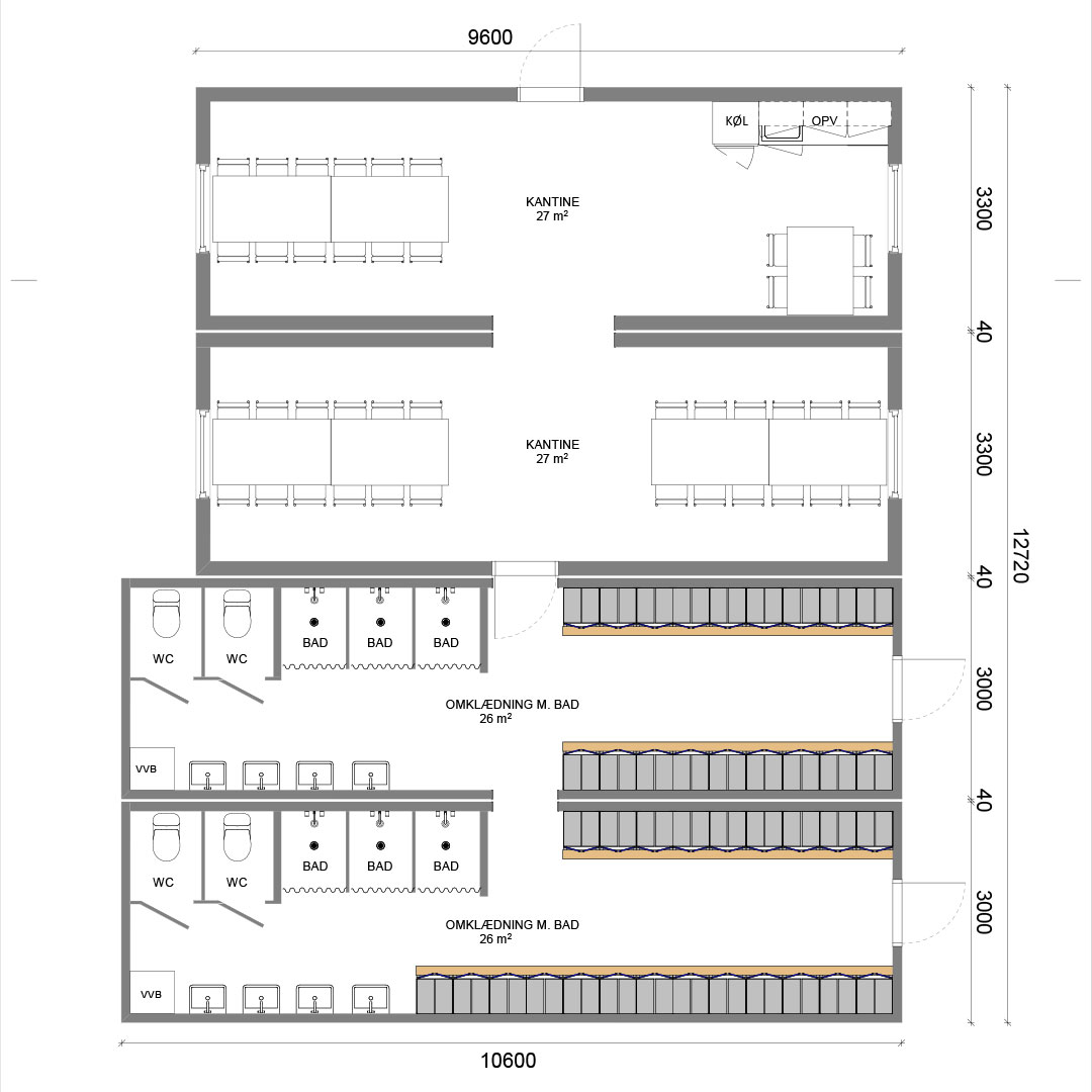
OK40-1
Omklædning/Kantinemoduler
40 personer
Størrelse: 2 X 3,0 x 10,6 m og 3,3 X 9,6 m, 127 m2
Egnet til 40 personer.
Indeholder omklædning, bad, toilet og kantine.
Brug for hjælp?
Kontakt os for uforpligtende rådgivning om byggeplads faciliteter!
info@focusmoduler.dk
87 10 90 99
